説明
【特徴】
●オールPVC製ですので、酸性薬品処理をした部品の洗浄等にも使用できます。
●水栓先端には水飛散防止用チューブが付属しています。
●グースネックは360°回転します。
●蛇口はメタルフリーです。
【仕様】
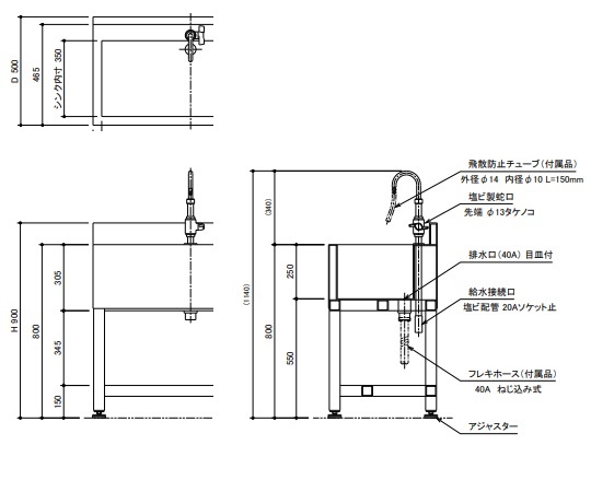
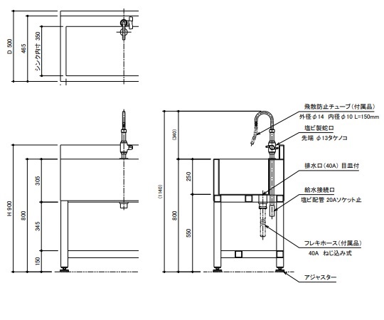
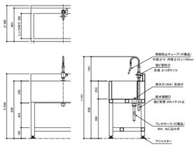
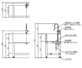
●仕様:蛇口付き
●サイズ(mm):900×500×900
●重量(kg):約24
●架台部:PVC角パイプ構造(アジャスター付き)
●排水ホース:内径φ40mm×フレキホース1.5m
●蛇口:PVC(接続口径/VP20A(呼び径))
●シンク寸法:820×350×250mm
●蛇口部分:外径/φ10mm、内径/φ7mm
●飛散防止用チューブサイズ:外径φ14×内径φ10mm(長さ/150mm)
●蛇口高さ:340mm
●付属:目皿付(PVC)
追加情報
メーカー名:
アズワン
メーカー品番:
AllP-900J
予定納期:
注文から1~3日で発送
