説明
【特徴】
●オールPVC製ですので、酸性薬品処理をした部品の洗浄等にも使用できます。
【仕様】
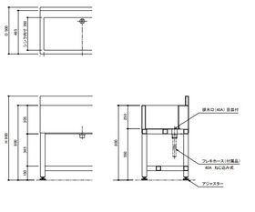
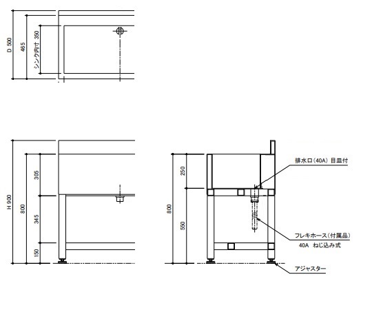
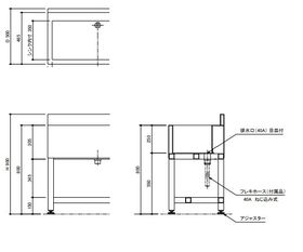
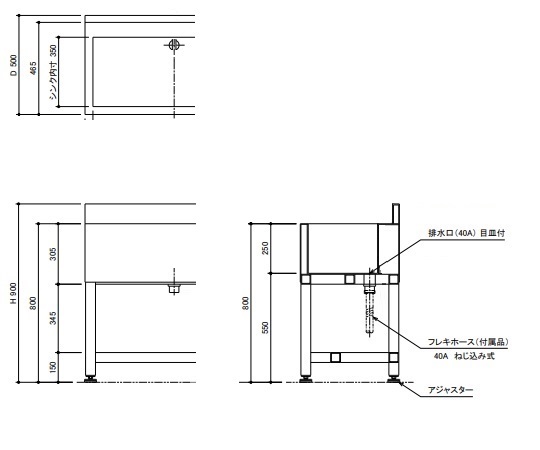
●仕様:蛇口無し
●サイズ(mm):600×500×900
●重量(kg):約16
●架台部:PVC角パイプ構造(アジャスター付き)
●排水ホース:内径φ40mm×フレキホース1.5m
●シンク寸法:520×350×250mm
●付属:目皿付(PVC)
追加情報
メーカー名:
アズワン
メーカー品番:
AllP-600
予定納期:
注文から1~3日で発送
