PVC流し台 蛇口付き AllP-1200J

アズワン, AllP-1200J
220,935 (税込) / 200,850 (税抜)
アズワン株式会社
必要ポイント数: 200850 ポイント
3-398-03
在庫あり
+

説明


【特徴】
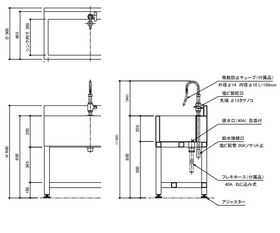
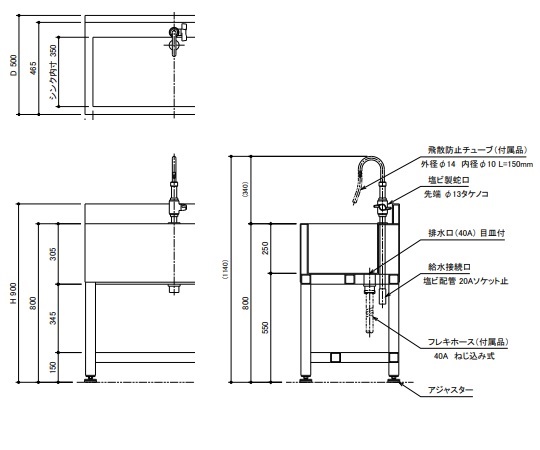
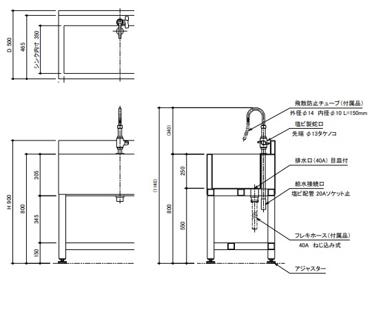
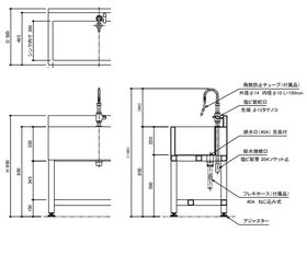
●オールPVC製ですので、酸性薬品処理をした部品の洗浄等にも使用できます。
●水栓先端には水飛散防止用チューブが付属しています。
●グースネックは360°回転します。
●蛇口はメタルフリーです。
【仕様】
●仕様:蛇口付き
●サイズ(mm):1200×500×900
●重量(kg):約30
●架台部:PVC角パイプ構造(アジャスター付き)
●排水ホース:内径φ40mm×フレキホース1.5m
●蛇口:PVC(接続口径/VP20A(呼び径))
●シンク寸法:1120×350×250mm
●蛇口部分:外径/φ10mm、内径/φ7mm
●飛散防止用チューブサイズ:外径φ14×内径φ10mm(長さ/150mm)
●蛇口高さ:340mm
●付属:目皿付(PVC)

追加情報

メーカー名:
アズワン
メーカー品番:
AllP-1200J
予定納期:
注文から1~3日で発送