説明
【特徴】
●オールPVC製で耐薬品性に優れ、酸性薬品処理をした部品の洗浄等にも使用できます。
●2槽式で一次リンス・二次リンスが可能です。
●ゴム栓で水をプールすることができます。
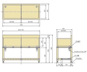
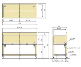
【仕様】
●型番:1200型
●排水ホース:内径φ25mmフレキホース1.5m×2本付き
●ゴム栓:2個
●架台部:PVC(塩化ビニル樹脂)角パイプ構造・パイプ棚・アジャスター付き
●外寸法:1200×500×900mm
●シンク寸法:556×420×250mm(×2槽)
●重量:約29kg
●※特注及び追加工可能です。
追加情報
メーカー名:
アズワン
メーカー品番:
1200型
予定納期:
注文から1~3日で発送
